Frischkochküche – auch mit wohnlichem Charakter
Auch eine Frischkochküche mit hohen hygienischen Anforderungen
kann mit einer wohnlichen Gestaltung, d.h. in einem Mix aus
Edelstahl- und Schreinermöbeln, ausgeführt werden.
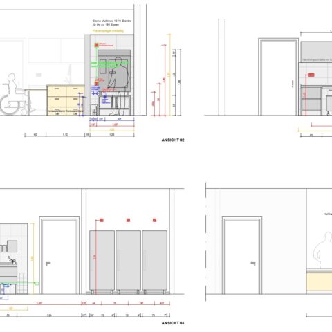
In diesem Beispiel ist an einer Längswand die Küchenzeile
mit ausreichend Stauflächen, einem großen Induktionskochfeld
und einer Doppelspüle ausgeführt worden.
Um den Platz in der Küche optimal nutzen zu können,
verlaufen die Schrankelemente bis unter die abgehängte Decke.
Davor ist als Mittelpunkt der Küche ein Arbeitsbereich angeordnet,
welcher sowohl als Vorbereitungsfläche der Küchenkräfte,
als auch für Koch- und Backaktionen mit den Kindern genutzt werden kann.
Ein Teil der Arbeitsplatte ist für Rollstuhlfahrer geeignet
und unterfahrbar angesetzt worden.
Ausziehbare Tritte im Hauptkorpus ermöglichen zudem ohne Aufwand
die Teilnahme auch kleinerer Kinder.
Die auf der gegenüberliegenden Längswand angesetzte Spülstrecke
wurde aus hygienischen Gründen in Edelstahl ausgeführt.
Sie ist ausgestattet mit einer Gewerbespülmaschine,
einer Spüle mit Standbrause und ausreichend Arbeits- und Abstellflächen.
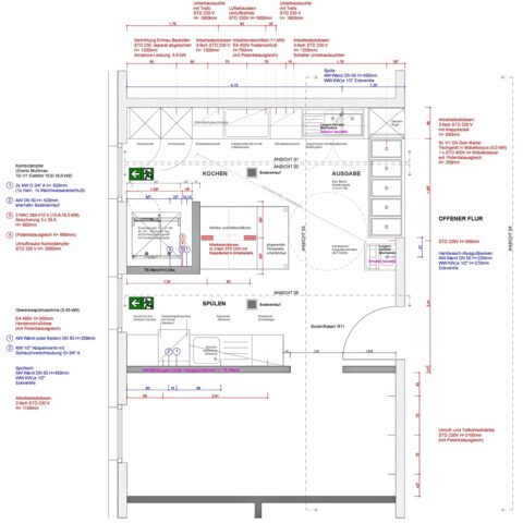
Um die Selbstständigkeit der Kinder zu fördern haben wir einen
grundlegenden Ablauf mit Integration einer Speiseausgabe erstellt.
Das Essen kann von den Kindern an der Speisenausgabe mit
Warmhaltebecken (Bain Maries) selbstständig entnommen werden.
Das anliegende Regal enthält das benötigte Geschirr und Besteck bereit.
Die Speisenausgabe ist als Theke konzipiert und trennt die Küche von Flur und Speisesaal.
Außerhalb der Speisezeiten wird hier die Küche durch eine Schiebetüranlage verschlossen.
Im Vorhinein jeder Planung stimmen wir uns routinemäßig mit dem Veterinäramt
und allen Fachingenieuren ab, um ein optimales, abnamefähiges Ergebnis zu erhalten.
